Sevgililer günü

Aşkınızı Sanatla Pişirin! Fırın, Torna, Bisküvi ve Alçı Kalıplarda %10'a Varan İndirim!

İNDİRİMLERİ GÖR
Stok Tankı
Stok Tankı
Stok Tankı

Stok Tankı
 

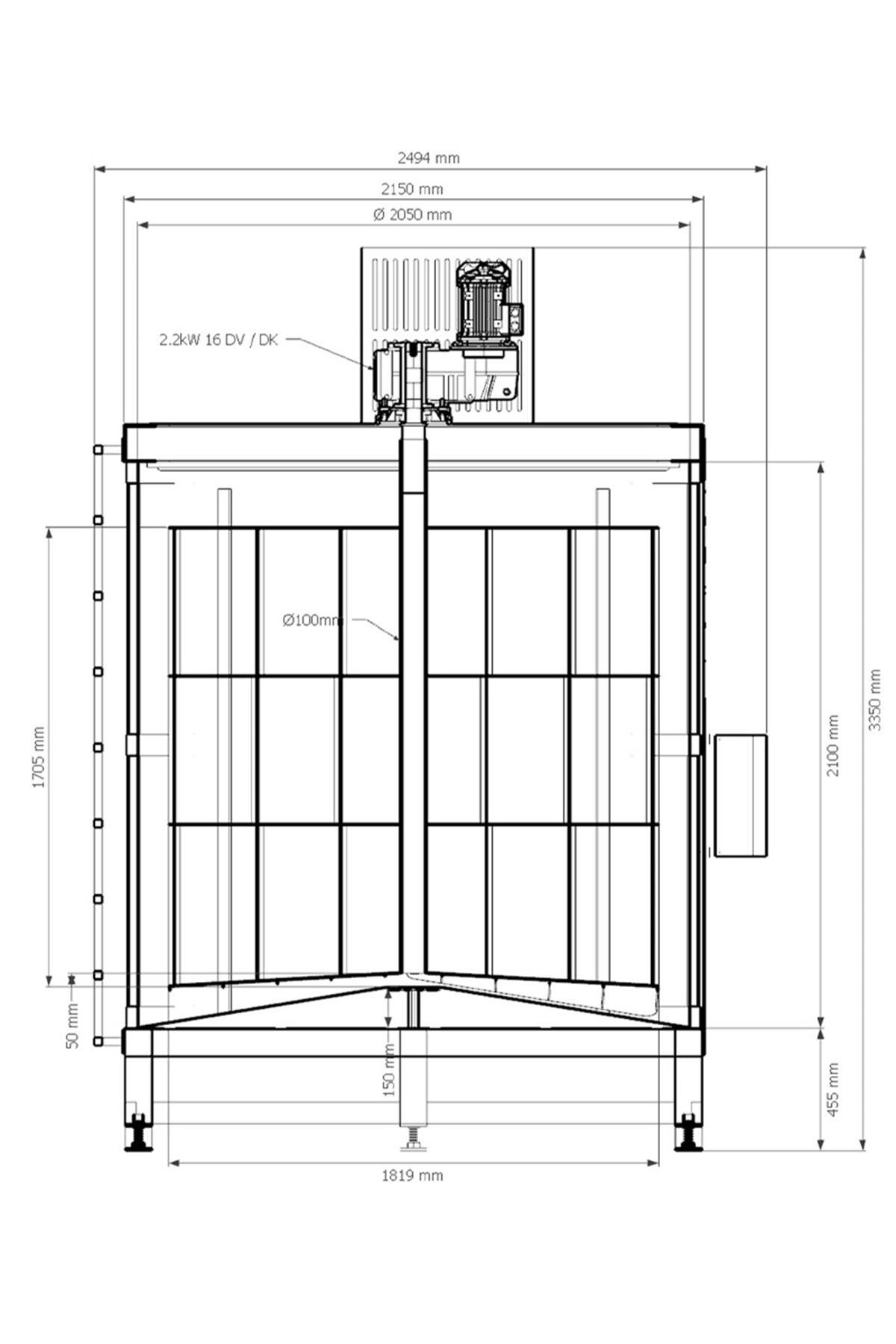
Yuvarlak Kazan: Ölçüler görselde verilmiştir.
Kazan Tabanı: Yukarı yönlü konik.
Paletli Karıştırıcı: Altında sıyırıcı uç.

Kazan Kenarlarında: 60 mm genişliğinde 4 adet dalgakıran.

 

Genel Özellikler:
Toplam Hacim: Yaklaşık 6500 litre.
Redüktörlü Motor: 2,2 kW 16dv/dk, kendinden yataklamalı.
Karıştırıcı Palet: Ölçüler görselde verilmiştir.
Karıştırıcı Palet Mili: Çap 100 mm boru, motora giren kısmı dolu mil.
Çıkışlar: 2 adet çıkış 2" dişi (1 adet yan altta, 1 adet alt kenar).
Paslanmaz Malzeme: Tank, karıştırıcı palet, tank kapakları ve redüktör bağlantı şasesinin alt kısmı (tank içine bakan kısım) paslanmaz.
Koruma Sacı: Redüktörlü motor çevresinde koruma sacı.

Marka
REFSAN
Motor Besleme
400 V.
Redüktör
Yılmaz Redüktör
Şase Boya
Elektrostatik Toz Boya
Vana
VAR
Merdiven
VAR
CE Belgesi
VAR
Garanti ( İşçilik Hatalarına Karşı)
2 yıl
cultureSettings.RegionId: 0 cultureSettings.LanguageCode: TR